209 Summer Wood Drive
Offered at: $1,495,000
MLS®: 10371866
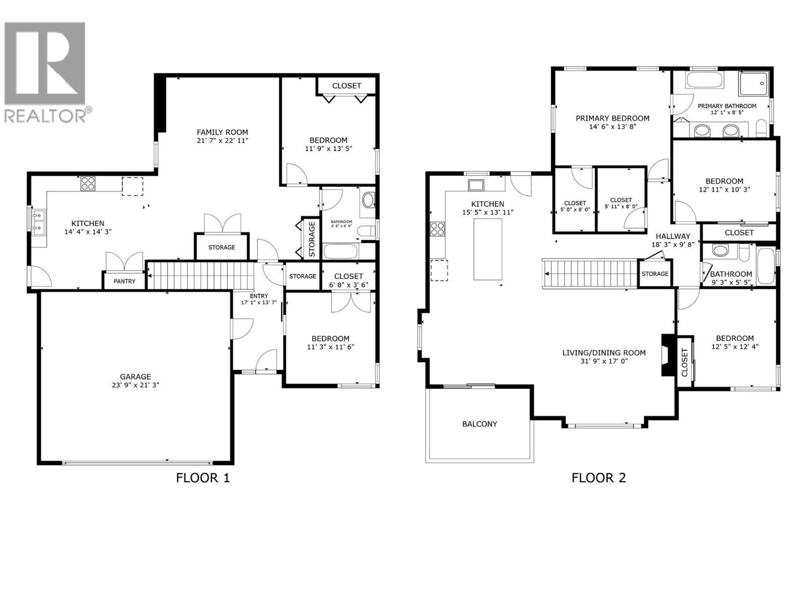
This Step 4 energy-rated home in Wilden stands out for its exceptional build quality, thoughtful design, and high-performance features. Offering 3 bedrooms and 2 bathrooms on the main level—a rare and highly desirable layout for families—plus a flexible bonus room or office on the lower level and a large 1-bed legal suite, the floor plan delivers versatility without compromise. The interior is defined by 9-ft ceilings on both levels, creating a bright, open atmosphere complemented by large windows, wide-plank white oak hardwood flooring, high-end cabinetry and appliances, waterfall countertops, and a striking gas fireplace. The ensuite is a beauty, featuring heated floors, a spacious walk-in shower, double vanity, and a freestanding bathtub. Built for modern living, the home includes a dual-fuel heating system, HRV system, upgraded electrical with 200amp service plus 100amps to the suite, along with EV and hot tub wiring. Epoxy decking, extensive storage, and a large exterior storage area allow the oversized garage to be used for actual vehicle parking, a feature rarely found and highly valued. Outdoor living is equally impressive with a fully fenced backyard, covered deck, expansive patio with built-in fire pit, and private front balcony—ideal for entertaining or enjoying the Okanagan lifestyle. This home delivers a rare combination of efficiency, functionality, and elevated finishes in one of Wilden’s most sought-after neighbourhoods. THIS IS A MUST SEE HOME! (id:6769)
Quick Stats
Key Home Data
3
BATH(S)
4
BED(S)
2921
SQFT
YES
SHOWING AVAILABLE
Property Type:
Single Family Home Ownership:
Freehold
Payment Calculator
Calculate your monthly mortgage payment.
Mortgage Amount
$
Amortization
years
Payment Freq.
Interest Rate
%
Calculating...
All About the Details
See specific details below.
Neighbourhood Statistics
Get to know your neighbourhood.

